Villa La Madonnuccia
Terni-Orvieto-Umbria

In the countryside near Orvieto, discover Villa La Madonnuccia, a prestigious property including a master villa from the 19th century with a strong and elegant character, a caretaker’s house, warehouses, and a traditional underground cellar of approx. 200 sqm. The property is surrounded by a park of about 4,500 sqm with centuries-old trees and blooming flowerbeds.

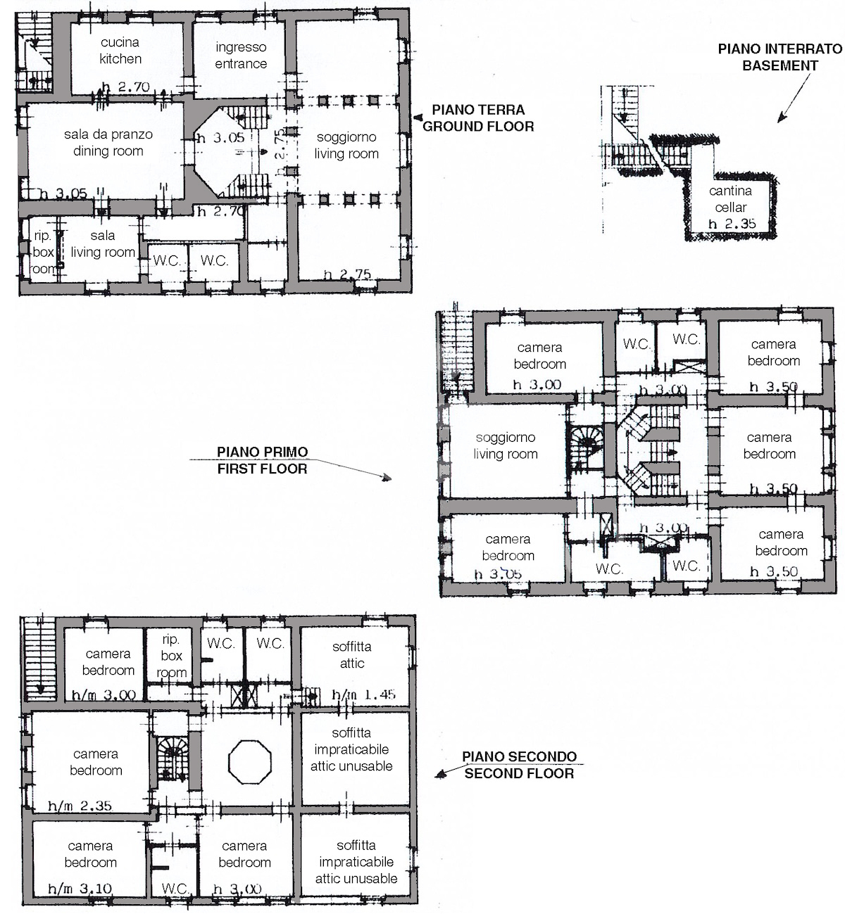
A villa with an ancient flair, where the walls tell of parties and salons, gentlemen, and noblewomen, radiating a unique and timeless charm that is still palpable today. The villa is located just a short distance from the city of Orvieto, whose “Rupe” is visible between the tall trees that surround the main building. The property consists of the master villa, with a park of about 4,500 sqm, on the edges of which there are a caretaker’s house, a garage, and warehouses, in need of renovation. There is also a traditional underground cellar of about 200 sqm. The villa extends on three levels, connected by a striking staircase that culminates on the top floor where the turret is located. The main entrance opens into the reception room, on the sides of which there are two rows of arches, each delimiting a study on one side and a living room on the other. Then there is a large dining room, adjacent to the kitchen. Also on the ground floor there are other rooms, bathrooms, and storage rooms. On the first floor there is a large living room connecting the two sections of the villa, including bedrooms, bathrooms, and other rooms. This level is also accessible via an external staircase. Access to the third floor is via an internal staircase or a freight elevator. On this last floor there are other rooms and bathrooms.


State of repair

Villa La Madonnuccia was built in the 19th century and was renovated over time. The most recent intervention was in 2000. The fixtures are made of wood. The floors have distinct types of tiles, depending on the function of the room.


Utilities

The main utilities are connected and functioning. The heating system is powered by methane. The water supply is via the municipal aqueduct. There is also a private well. In the villa there is also a freight elevator that connects the three levels.


Use and Potential Uses

Featuring large and bright rooms, the villa may be turned into a prestigious residence as well as a holiday home or tourist rental, given the easy access and its strategic position, so close to both Orvieto and the A1 motorway exit.


Land registry details

For each property offered, the Great Estate group conducts – via the seller’s technician – a technical due diligence. This allows us to know in detail the urbanistic planning and cadastral circumstances of each property. This due diligence may be requested by the client at the time of a real interest in the property.


Location

The property is located just 8 km from both the historic city centre of Orvieto, which stands on a tuff rock, and the A1 motorway exit and train station. Lake Bolsena is approximately 20 km away, while Civita di Bagnoregio “The Dying City” is approximately 12 km away.

 Back to Results
Contact a Broker
 

Property’s details

Price: €1,300,000

Type: Luxury Villas

Land: 4,537 m2 / 48,835.86 sqft

Bedrooms: 7

Bathrooms: 9

Kitchen: 1

Living Rooms: 5

Studio: 1

Year of construction: 1800

Year of the last renovation: 2000

Condition: Restored

Energy class: G


Surfaces data

Commercial surface : 1,936 m2 / 20,838.93 sqft

Some fields I can't find in api

Lifestyle


Distances

"Motorway exit": 8 km

Hospital: 8 km

Station: 7 km

Theatres/Cinemas: 10 km

Supermarket: 7 km

Airport: 83 km

Cities/Towns/Villages: 1 km

"Ski facilities": 70 km

Sea: 80 km

Lake: 25 km

Shops: 1 km

Schools: 9 km

Banks: 6 km


External features

Street view

Garden view

Park view


Interior features

Bathroom with shower

Armored door

Alarm system

Lift

Tiled floors

Multiple entrances

Bathroom with bath

Plans

Team Image

MeetThe Team

The Small Real Estate team is ready to help. With deep local knowledge, and unmatched real estate experience, we'll work with you to find the property that matches your unique needs.

Learn More

Access OurCloud System

Access the cloud

Visit OurCareer Site

Access the Career Page