Tenuta Il Riccio
Terni-Orvieto-Umbria

Ancient stone farmhouse from the late 1800s, Tenuta Il Riccio is one of those estates that retains the intact charm of the past. Spacious interiors, abundant character, and a magnificent outdoor park with a swimming pool to fully experience the magic of the Umbrian countryside.

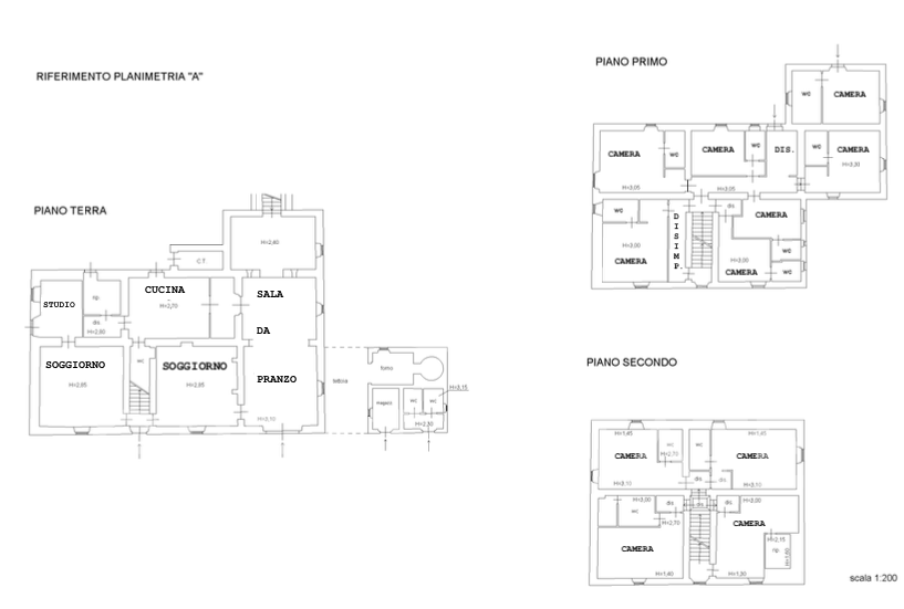
Spacious interiors, a magnificent park, and abundant charm define Il Riccio Estate, located just a stone’s throw from Orvieto. The estate unfolds over three levels, with a total gross area of approximately 775 sqm. On the ground floor, it features an entrance hall, a kitchen, a study, two living areas, a grand dining room, two storage rooms, a bathroom, a hallway, and a utility room. From the dining room, you access the old cellar hand-carved into the tuff stone. On the same level, connected to the main building by a portico, there is a warehouse, an oven, and two additional bathrooms.

Ascending the elegant stone staircase to the first floor, you find seven bedrooms, each with its own en-suite bathroom, complemented by a hallway. The second floor houses four bedrooms, three bathrooms, a storage room, and additional hallways.

The estate is further enhanced by a 6,600 sqm park, a 7×14 meter swimming pool set against the backdrop of ancient caves, and agricultural land spanning approximately 3.1 hectares. This includes a productive hazelnut grove covering about 1 hectare and around 120 olive trees, offering a harmonious blend of luxury living and agricultural heritage.


State of repair

The ancient stone farmhouse dates back to 1889 and was completely renovated in 1996 with great attention to preserving the oldest parts, incorporating high-quality elements such as custom-made furniture crafted by local artisans. Wooden frames with double glazing.


Utilities

The main utilities are connected and operational. Air conditioning and Internet connection are available. Autonomous heating served by a biomass boiler powered by hazelnuts and LPG, connection to the municipal aqueduct, and presence of a satellite dish.


Use and Potential Uses

A spacious and welcoming residence where the whole family finds room: a second home designed for both relaxation and conviviality. Given its strategic location along the road from Orvieto to Bolsena, Montefiascone, and Viterbo, and its generous indoor and outdoor spaces, Tenuta Il Ricco is also suitable as an investment for the tourist rental sector.


Land registry details

The Great Estate group conducts a thorough technical due diligence on every property acquired, carried out by the seller’s technical expert. This process allows us to gain a detailed understanding of the urban planning and cadastral status of each property. This due diligence report can be requested by the client upon genuine interest in the property.


Ownership details and eventual contractual obligations

The property is registered to a private individual(s), and the sale will be subject to registration tax in accordance with current regulations (see private purchase costs).


Location

Just a few steps from Orvieto and a short distance from Lake Bolsena, nestled on the hills overlooking the valley, the property is only 9 km from the Orvieto highway exit and train station. Located on the border between Tuscany and Lazio, this estate boasts a strategic position, offering an ideal starting point to explore stunning landscapes, from the Val d’Orcia to the enchanting Civita di Bagnoregio, and the thermal baths of Viterbo and San Casciano dei Bagni, all reachable within an hour.

 Back to Results
Contact a Broker
 

Property’s details

Price: €1,400,000

Type: Rustic farmhouses and Countryhouses

Land: 30,960 m2 / 333,250.65 sqft

Bedrooms: 11

Bathrooms: 11

Kitchen: 1

Living Rooms: 4

Studio: 0

Year of construction: 1889

Year of the last renovation: 1996

Condition: Restored

Energy class: G


Surfaces data

Commercial surface : 840 m2 / 9,041.68 sqft

Some fields I can't find in api

Lifestyle


Distances

Airport: 86 km

Cities/Towns/Villages: 5 km

"Ski facilities": 60 km

Sea: 72 km

Lake: 15 km

Shops: 5 km

Schools: 9 km

"Motorway exit": 11 km

Supermarket: 6 km

Banks: 4 km

Theatres/Cinemas: 8 km

Station: 10 km

Hospital: 11 km


External features

Garden view

Street view

Park view


Interior features

Multiple entrances

Bathroom with bath

Bathroom with shower

Optical fiber

Services for PWD

Terracotta floors

Parquet

Plans

Team Image

MeetThe Team

The Small Real Estate team is ready to help. With deep local knowledge, and unmatched real estate experience, we'll work with you to find the property that matches your unique needs.

Learn More

Access OurCloud System

Access the cloud

Visit OurCareer Site

Access the Career Page