PRATARELLE RENOVATION PROJECT
Perugia-Cannara-Umbria

As the saying goes, “you can change your house, but you can’t change the location,” and this property proves it perfectly. Set atop a hill and immersed in nearly ten hectares of private land with several hundred olive trees, Progetto Pratarelle enjoys breathtaking views over the Umbrian valleys, stretching as far as Assisi and Spello.
The main villa, measuring approximately 380 sqm plus 110 sqm of porticos and 30 sqm of terraces, requires a full renovation. Its exceptional 150 sqm living room, surrounded by French windows on two sides overlooking the valley, is a remarkable feature that truly deserves to be enhanced.
A short distance from the villa there is a wooden annex, rooms below used as a garage and storage room, a swimming pool, and a large shed for agricultural use.

Progetto di ristrutturazione Pratarelle
At the heart of the estate stands a villa originally built in the 1970’s by a local architect. Although the property requires a full renovation, the existing volume – 380 sqm plus a magnificent 110 sqm porch – and the location offer exceptional potential, a rare opportunity in such a privileged setting.
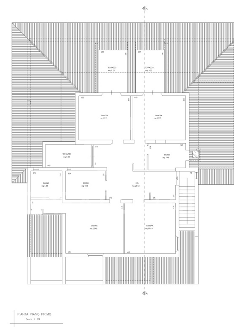
The villa currently features a spacious living area on the ground floor (150 sqm), with a separate kitchen, entrance, and bathroom. The upper floor includes four bedrooms and three additional bathrooms.
The estate also includes a distinctive chalet-style outbuilding – in need of renovation – with a wooden structure. This building houses a one-bedroom unit with living area, kitchen, and bathroom.
The lower level provides ample space for storage or multi-purpose use, with the possibility of conversion into a garage or workshop.
Additionally, the property benefits from a large 100 square meter canopy/barn and an existing swimming pool, which currently requires a complete renovation.
The approximately 10-hectare land – 25 acres – is beautifully varied, featuring several hundred century-old olive trees, gentle lawns cascading down the slope, and a wooded area, creating an ideal environment for both relaxation and small-scale cultivation.


State of repair

Pratarelle has a mixed load-bearing structure of reinforced concrete and masonry, with construction dating back to the 1970s. A complete renovation is required for the structure, systems, and finishes, both on the main building and the ancillary structures as well as the swimming pool.


Utilities

All systems require complete refurbishment.
The property is served by electricity, with a private well as water supply.


Use and Potential Uses

In its current state, the property represents an ambitious renovation project with great potential, to create an extraordinary residence. For those willing to invest in its transformation, it offers the rare opportunity to craft a bespoke contemporary home—bathed in natural light and framed by some of the most captivating landscapes in Umbria.


Land registry details

The Great Estate group, for each acquired property, conducts a technical due diligence through the seller client’s technician, allowing us to thoroughly understand the urban and cadastral status of each property. This due diligence can be requested by the client upon genuine interest in the property.


Ownership details and eventual contractual obligations

Property registered to private individuals.


Location

Pratarelle is located in the municipality of Cannara, offering commanding views of Spello, Assisi, Mount Subasio, and the Umbrian Valley, in an area free from any visual or acoustic disturbances.
The location ensures absolute privacy and tranquility, set within a magnificent natural landscape with abundant light, all within close proximity to essential services and major transport routes.
A charming village with an excellent restaurant is just a 5-minute drive away. Supermarkets and shops are within 10-15 minutes by car.
Spello, Assisi, Foligno, Bevagna, Montefalco, and Perugia are all within a 30-minute drive from Pratarelle, as well as the Perugia-Assisi international airport.

 Back to Results
Contact a Broker
 

Property’s details

Price: €320,000

Type: Luxury Villas

Land: 100,000 m2 / 1,076,391.00 sqft

Bedrooms: 5

Bathrooms: 5

Kitchen: 2

Living Rooms: 1

Studio: 0

Year of construction: 1980

Year of the last renovation: 1980

Condition: Not restored

Energy class: Immobile esente da certificazione energetica


Surfaces data

Commercial surface : 751 m2 / 8,083.70 sqft

Some fields I can't find in api

Lifestyle


Distances

km


External features


Interior features

Plans

Team Image

MeetThe Team

The Small Real Estate team is ready to help. With deep local knowledge, and unmatched real estate experience, we'll work with you to find the property that matches your unique needs.

Learn More

Access OurCloud System

Access the cloud

Visit OurCareer Site

Access the Career Page